



| 所在地 | 山形県天童市芳賀タウン南2丁目 | 価格 | 5,600万円 ※価格改定しました |
|---|---|---|---|
| 土地面積 | 306.85m²(92.82坪) | 土地権利 | 所有権 |
| 建物面積 | 174.87m²(52.90坪) | 築年 | 2019年7月 |
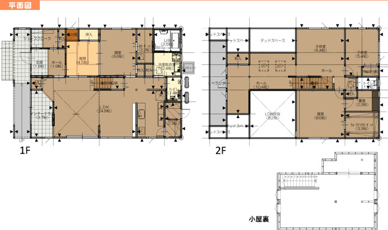
| タイプ | 5SLDK | 間取詳細 | 洋6.6帖・洋6.4帖・洋5.4帖・洋8.6帖・和4.5帖・LDK24.8帖・S15帖 |
| 建物種別 | 中古戸建 | 建物構造 | 木造2階建(小屋裏付) |
| 都市計画 | 市街化区域 | 用途地域 | 第二種低層住居専用地域 |
| 建ぺい率 | 60% | 容積率 | 100% |
| 駐車場 | 4台可 | 地目 | 宅地 |
| 接道状況 | 西側20.0m 間口12.8m | ||
| セットバック | 無 | 私道負担 | 無 |
| 学区 | 高擶小・天童三中 | 交通 | JR奥羽本線 天童南駅徒歩8分 |
| 設備 | オール電化・高気密高断熱住宅・対面式システムキッチン・食器洗乾燥機・洗エールレンジフード・全室収納・パントリー・ウォークインクローゼット・トイレ2ヶ所・温水洗浄便座・シャワー付洗面化粧台・樹脂サッシトリプルガラス・西側ベランダ | ||
| 備考 | ハウスメーカーモデルハウス販売。 家具・家電付。外構工事済み。制震ダンパー設置。 イオン天童まで徒歩5分。天童南駅まで徒歩8分。 |
||
| 引渡日 | 令和6年4月以降 相談 | 引渡条件/現況 | 現状引渡/展示場 |
| 引渡態様 | 仲介 | 情報更新日 | 25.12.01 |
| 次回更新予定日 | 25.12.15 | ||
有限会社松田建築美装 不動産部
[住所] 〒991-0041 山形県寒河江市大字寒河江字赤田138-1
[TEL] 0237-87-9136
[免許] 山形県知事(6)第2001号
[加盟団体] (公社)山形県宅地建物取引業協会
[住所] 〒991-0041 山形県寒河江市大字寒河江字赤田138-1
[TEL] 0237-87-9136
[免許] 山形県知事(6)第2001号
[加盟団体] (公社)山形県宅地建物取引業協会



